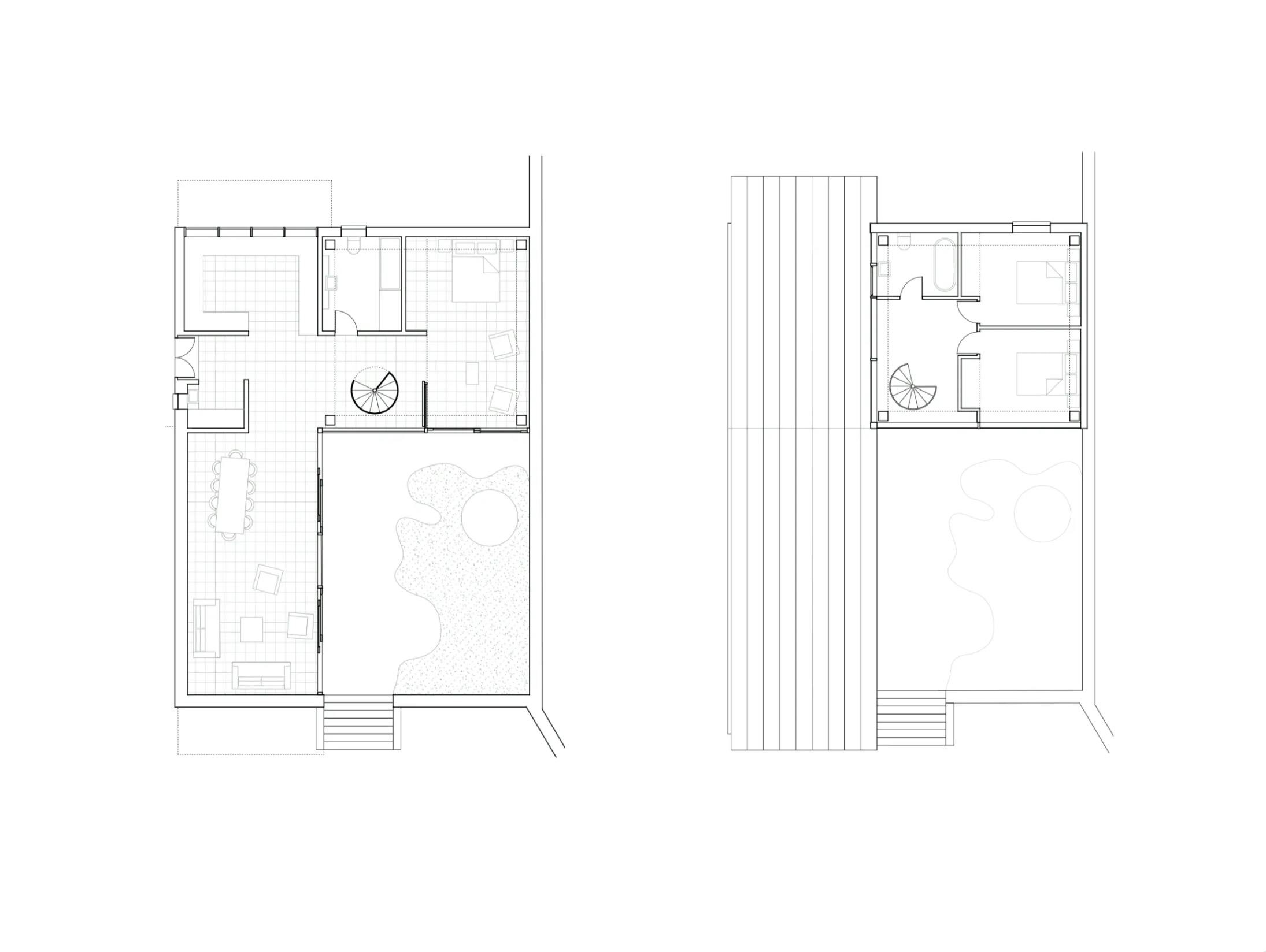
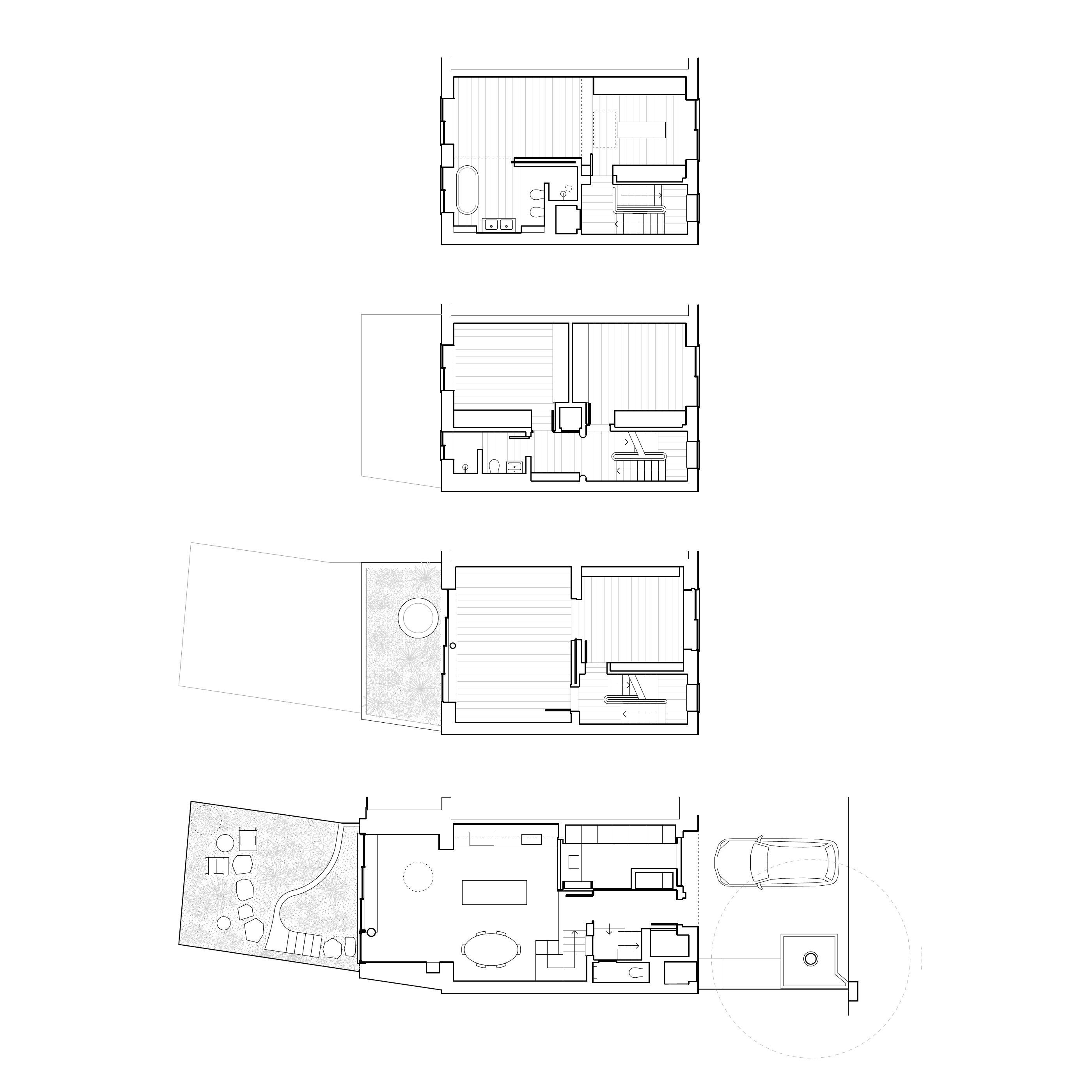
Pricegore